
We tailor every marketing campaign to a customer’s requirements and we have access to quality marketing tools such as professional photography, video walk-throughs, drone video footage, distinctive floorplans which brings a property to life, right off of the screen.
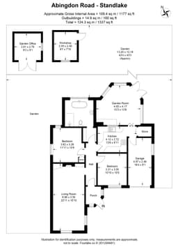
A wonderful opportunity to purchase this detached two-bedroom bungalow located in the popular village of Standlake. The accommodation comprises sitting room with log burner, kitchen, two bedrooms, bathroom with bath and separate shower cubicle, integral garage and garden room with doors leading out to the rear garden. Outside is the landscaped rear garden, garden office and workshop and to the front of the property is off-street parking for multiple vehicles.
Standlake is a popular village located just south of the river Windrush, the village is home to many local amenities including a church, pub, post office and stores, Church of England primary school and village hall. The nearest railway station can be found in Oxford, approximately 6.9 miles away which offers a direct line to London Paddington. There is a bus service which runs from six days a week between Witney and Abingdon passing through the village.Â
Â